Кошик 0
Список порівняння 0 Список бажань 0
Ви дивилися 6
Особистий кабінет
Меню
Наша адреса: м. Київ, вул. Антона Цедіка, 12, оф.120
м. Київ, вул. Антона Цедіка, 12, оф.120
Графік прийому дзвінків та замовлень:
ПН-ПТ - з 09:00 до 17:00
СБ-НД - вихідний
Графік прийому дзвінків та замовлень:
ПН-ПТ - з 09:00 до 17:00
СБ-НД - вихідний
+38 (067) 509-18-32 +38 (044) 390-75-31 Замовити дзвінок
5 586 грн.

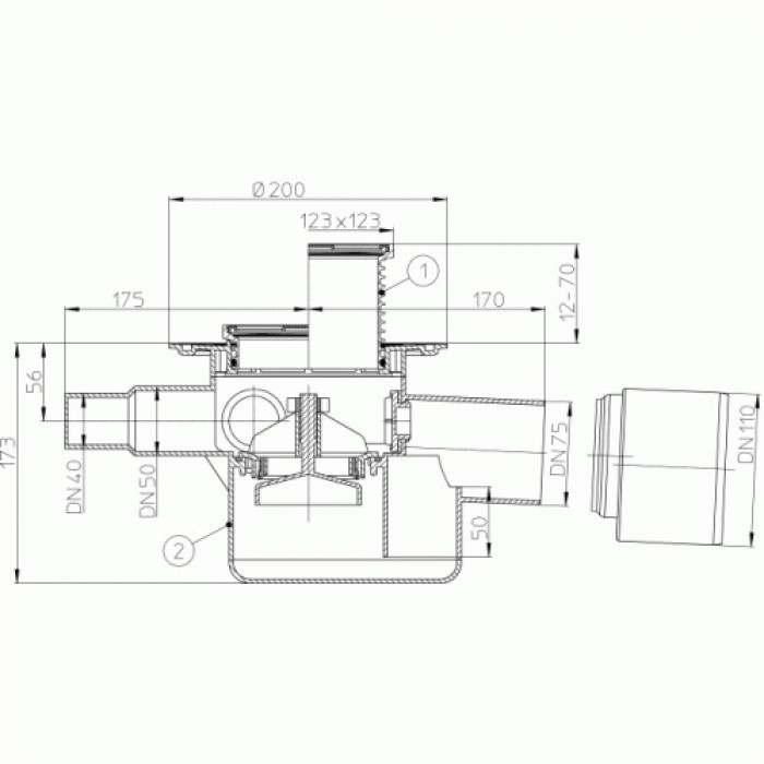
Трап для внутрішніх приміщень з горизонтальним випуском DN75/110 HL70

Виробник: HL Hutterer & Lechner GmbH
Код товару: HL70
Відгуки: (0)
В наявності
5 586 грн.

Трап для внутрішніх приміщень з горизонтальним випуском DN75/110 HL70

    HL70 від Hutterer & Lechner — це класичний та надійний трап для внутрішніх приміщень, призначений для відведення великих обсягів стічної води з підлоги. Він ідеально підходить для душових кімнат, пралень, технічних приміщень та будь-яких вологих зон, де потрібен ефективний злив води безпосередньо в каналізацію

     Основне призначення та сфера застосування

    • Призначення: Збір та відведення води з рівня підлоги.
    • Сфера: Внутрішні приміщення — приватні та громадські душові, підвали, котельні, технічні кімнати, балкони (якщо забезпечена морозостійкість, хоча в першу чергу це внутрішній трап).
    • Тип випуску: Горизонтальний — трап підключається до каналізаційної труби, що йде паралельно підлозі (у стяжці або під нею).


     Технічні характеристики

        • Модель: HL70.

        • Діаметр підключення (випуск): DN75/110 (Номінальний діаметр 75 мм та 110 мм). Це універсальний великий діаметр, що дозволяє підключити трап до найбільш поширених розмірів каналізаційних труб.

        • Пропускна здатність: Висока, оскільки трап розроблений для швидкого відведення значних обсягів води (наприклад, при прориві труби або інтенсивному користуванні душем).

        • Монтаж: Вбудовується безпосередньо у стяжку підлоги.

        • Матеріал: Корпус зазвичай виконаний з міцного поліпропілену (ПП).

            • Розмір решітки: 115х115 мм; в підрамнику 123х123 мм
            • Висота гідрозатворів 50 мм,
            • Вхідні отвори: DN 40/50;
            • Продуктивність: 1,12 л / с;
            • Максимальна температура: + 85ºС;
            • Клас навантаження: K3 - max.300 кг.

           Ключові компоненти та особливості

            • А. Корпус з гідрозатвором

              • Корпус має інтегрований сифон для створення водяної пробки (гідрозатвору).

              • Функція гідрозатвору: Ефективно блокує проникнення неприємних запахів з каналізаційної системи назад у приміщення.

              • Обслуговування: Сифонний вкладиш (або гідрозатвор) часто є знімним для зручного чищення та ревізії трапа.

              Б. Приймальна частина та Решітка

              • Надставний елемент (Tragring): Трап комплектується елементом, який дозволяє регулювати висоту та рівень приймальної решітки відповідно до чистової підлоги.

              • Решітка: Зверху встановлюється решітка (часто з нержавіючої сталі або міцного пластику), яка захищає від попадання великого сміття у каналізацію та є єдиним видимим елементом.

              Переваги

              • Універсальність: Подвійний діаметр випуску DN75/110 дозволяє легко підключитися до різних каналізаційних систем.
              • Надійність: Висока пропускна здатність забезпечує ефективне відведення води, запобігаючи затопленню.
              • Регульованість: Можливість точного вирівнювання решітки по рівню чистової підлоги.

                Висновок: HL70 — це високофункціональний та гнучкий у монтажі трап для внутрішніх приміщень, який забезпечує надійне водовідведення та захист від запаху.

                Теги: м

                Відгуки
                0/ 5
                середній рейтинг товара
                0
                0
                0
                0
                0
                Немає відгуків про цей товар. Станьте першим, залиште свій відгук.